GRAUN IM VINSCHGAU

Graun im Vinschgau/St. Valentin: Gewerbeimmobilie mit Betriebswohnung zu verkaufen

Graun im Vinschgau
Graun im Vinschgau/St. Valentin: Gewerbeimmobilie mit Betriebswohnung zu verkaufen

Beschreibung

Zum Verkauf steht eine Gewerbeimmobilie in St. Valentin auf der Haide, welche vor ca. 20 Jahren errichtet wurde.

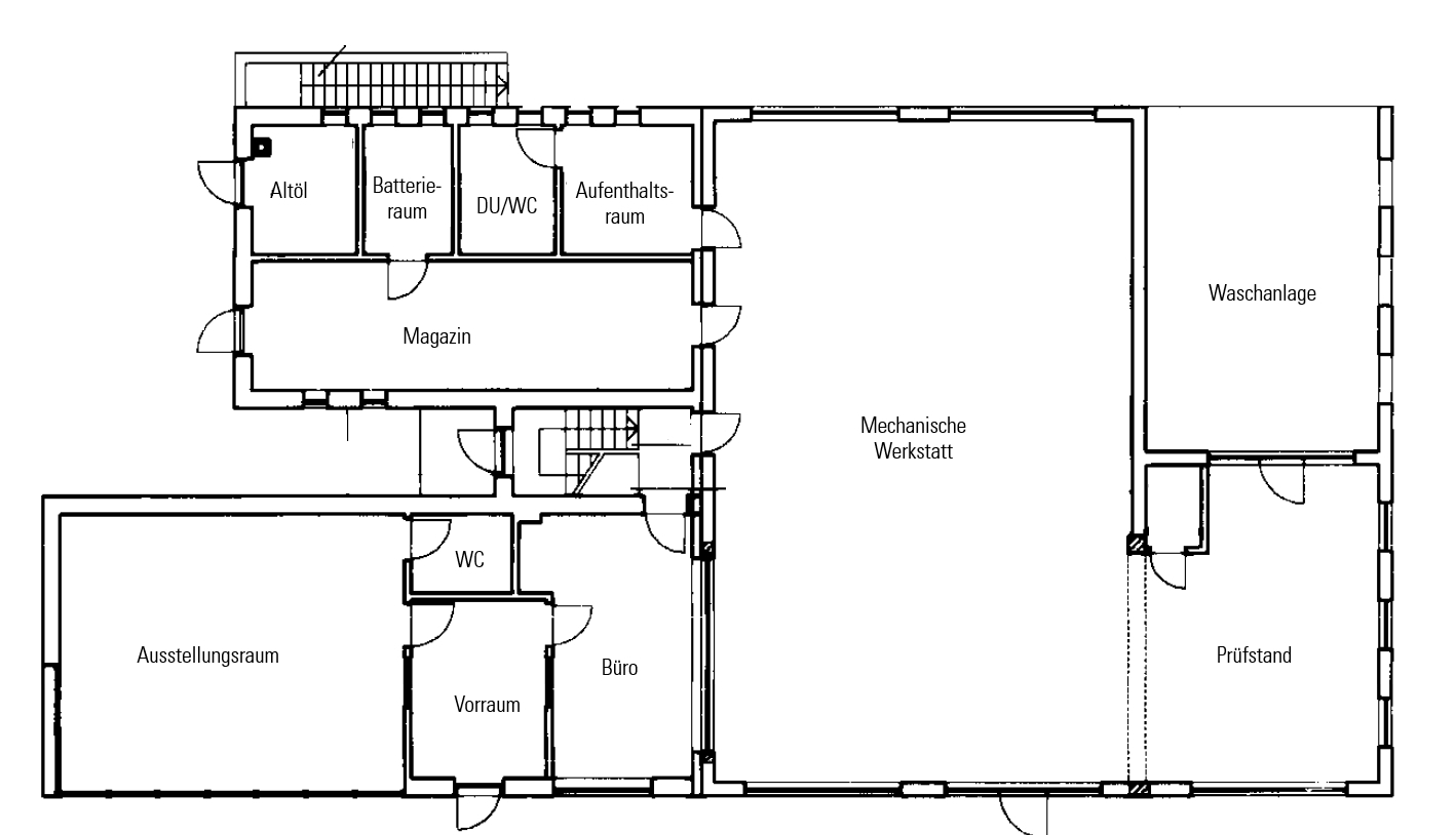
Sie erstreckt sich über 4 Stockwerke und ist wie folgt eingeteilt:
- Kellergeschoss: Hackschnitzelsilo und Heizraum, Magazin und Kellerräume
- Erdgeschoss: Werkstätte mit Waschanlage, Aufenthaltsraum mit WC/Dusche, Büro und Ausstellungsraum
- 1. Obergeschoss: 4-Zimmerwohnung mit 3 Schlafzimmern, Wohnzimmer, Badezimmer, Speis, Küche, Balkon und Terrasse
- 2. Obergeschoss: Nicht ausgebauter Dachboden

Lage

Die Immobilie befindet sich in der Gewerbezone, direkt angrenzend die Hauptstraße und verfügt somit über eine gute Sichtbarkeit und sehr gute Verkehrsanbindungen.

Ausstattung

Das Gebäude wird mit einer Hackschnitzelanlage beheizt. Die Werkstatt verfügt über Deckenstrahler, während in der Wohnung Radiatoren und eine Bodenheizung im Bad für den Wärmeaustausch sorgen.
Weiters befindet sich eine Photovoltaikanlage auf dem Dach mit 19,9 KW.

Sonstige Angaben

Die Werkstatt ist derzeit vermietet.

Kontaktperson

Kontakt

Immobilie anfragen

Standort

Lage & Umgebung