SCHLUDERNS

Schluderns: Geschäft mit großer Lagerfläche zu vermieten

Schluderns
Schluderns: Geschäft mit großer Lagerfläche zu vermieten

Beschreibung

Vermietet wird ein Geschäftslokal mit Lagerflächen in Schluderns, direkt an der Hauptstraße und somit in einer zentralen Lage, mit guten Verkehrsanbindungen und guter Sichtbarkeit.

Die Immobilie erstreckt sich über 3 Stockwerke und ist wie folgt eingeteilt:

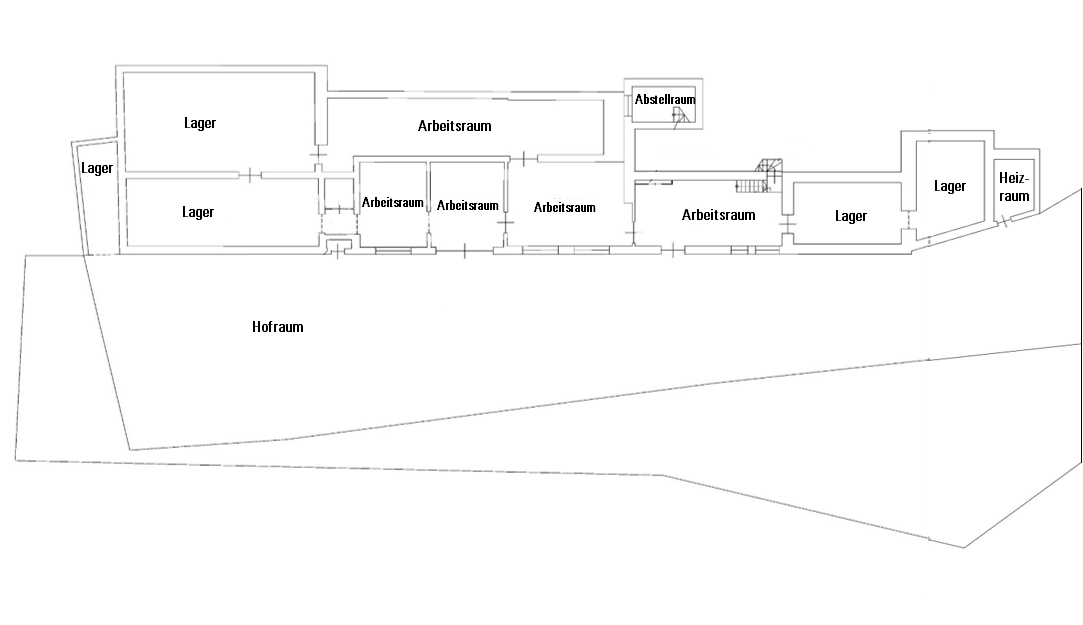
2. Untergeschoss mit ca. 456 m²:
- 5 Lagerräume, 5 Arbeitsräume und 1 Abstellraum

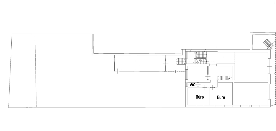
1. Untergeschoss mit ca. 43 m²:
- 2 Büroräume und WC

Erdgeschoss mit ca. 161 m²:
- Lager, WC und Geschäft mit großer Fensterfront

Ausstattung

Im Untergeschoss sind Kühlzellen vorhanden.

Die Immobilie wird mittels Ölheizung beheizt, der Wärmeaustausch erfolgt durch Radiatoren.

Sonstige Angaben

Die Anmietung von Teilflächen ist möglich.

Kontaktperson

Kontakt

Immobilie anfragen

Standort

Lage & Umgebung