ST. VALENTIN AUF DER HAIDE

Graun / St. Valentin: Gewerbeimmobilie mit Betriebswohnung zu verkaufen

St. Valentin auf der Haide
Graun / St. Valentin: Gewerbeimmobilie mit Betriebswohnung zu verkaufen

Beschreibung

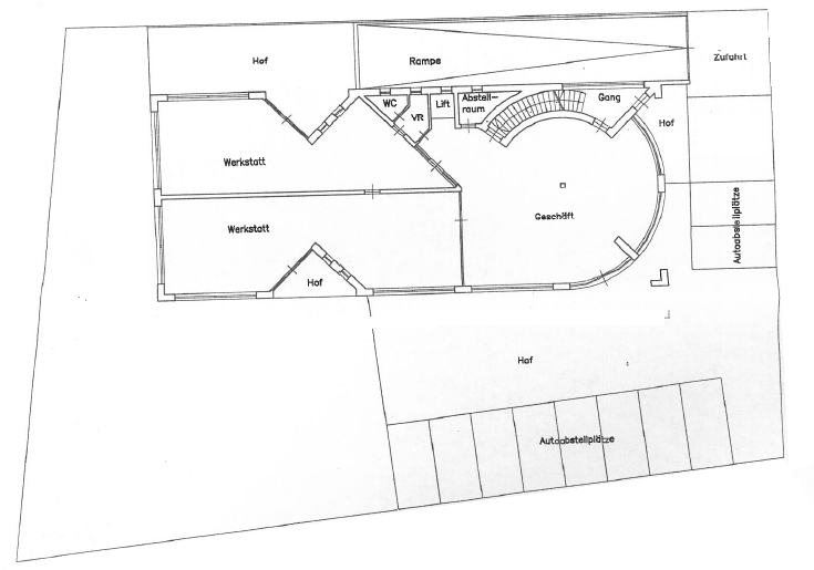
Zum Verkauf steht eine Gewerbeimmobilie mit Betriebswohnung in St. Valentin auf der Haide, einer Fraktion der Gemeinde Graun im Vinschgau. Die Liegenschaft befindet sich in der Handwerkerzone, angrenzend an die Staatsstraße und somit in einer zentralen Lage, mit guten Verkehrsanbindungen und guter Sichtbarkeit. Derzeit wird sie als Ausstellungsraum genutzt.

Die Immobilie erstreckt sich über 3 Stockwerke und ist wie folgt eingeteilt:

Kellergeschoss:
- Garage mit ca. 240 m²
- Kellerräume

Erdgeschoss:
- Ausstellungsraum / Verkaufsfläche
- Besprechungsraum
- Büroräume
- WC's
- 15 Parkplätze
- Hofraum

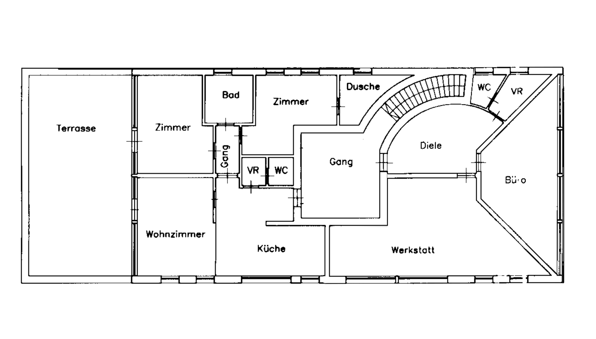
1. Obergeschoss:
- Büroräumlichkeiten
- WC

Weiters befindet sich im 1. Obergeschoss die Betriebswohnung mit ca. 90 m²
Diese 3-Zimmerwohnung verfügt über 2 Schlafzimmer, Küche, Wohnzimmer, Badezimmer und Tages-WC, sowie einen Vorraum und eine große Terrasse mit ca. 65 m².

Das Wohnhaus wird mittels Fernwärme beheizt, der Wärmeaustausch erfolgt durch Radiatoren.

Kontaktperson

Kontakt

Immobilie anfragen