MALS

Mals / Burgeis: Gut geführtes Gasthaus mit Zimmern und Privatwohnung zu verkaufen

Mals
Mals / Burgeis: Gut geführtes Gasthaus mit Zimmern und Privatwohnung zu verkaufen

Beschreibung

Zum Verkauf steht ein gut besuchtes Gasthaus mit Gästezimmern und einer Privatwohnung in Burgeis, einer Fraktion der Gemeinde Mals. Die Verkaufsliegenschaft befindet sich in der Nähe der oberen Dorfeinfahrt und aufgrund der optimalen Verkehrsanbindungen in einer sehr guten Lage.

Ausstattung

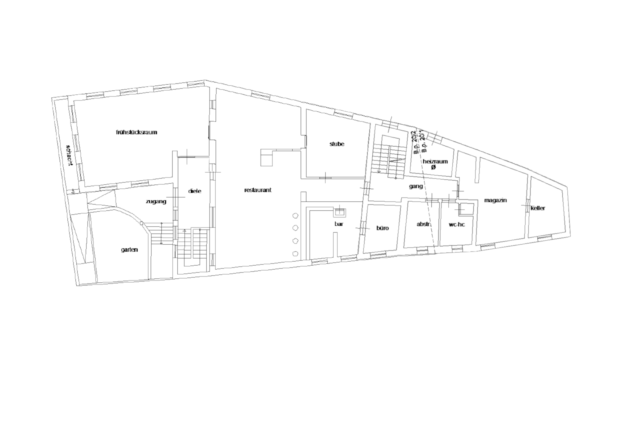
Der Restaurantbereich setzt sich aus Bar, Speisesaal, Bauernstube und Terrasse zusammen und bietet Platz für ca. 80 Gäste. Der Zugang erfolgt völlig autonom über die Terrasse, welche behindertengerecht errichtet wurde. Im 1. Obergeschoss befindet sich die Küche. Die beiden Bereiche sind durch einen Speiseaufzug miteinander verbunden.
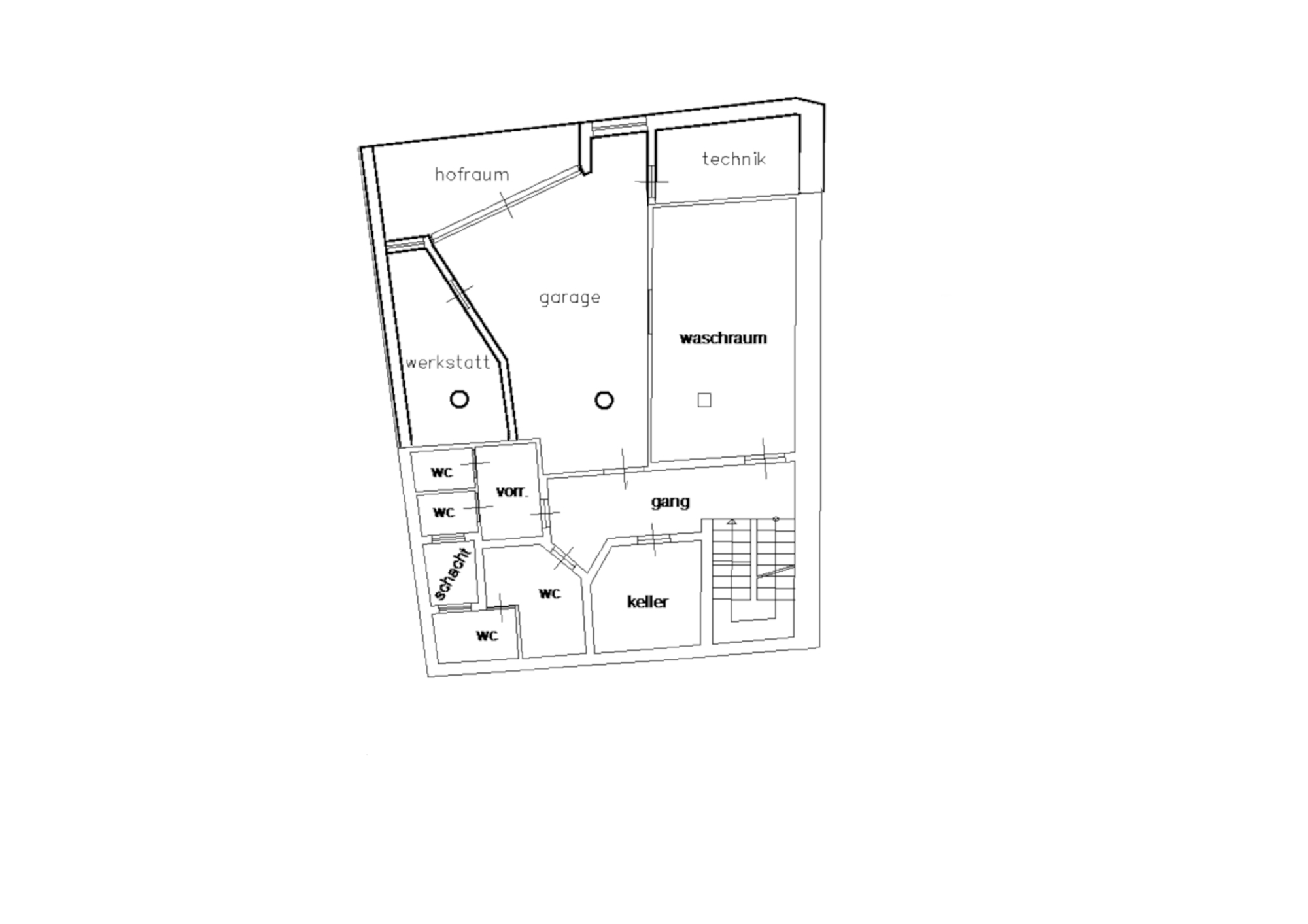
Toiletten im Untergeschoss, ein Keller, ein Waschraum, sowie ein Lager und eine kleinere Küche sind ebenfalls vorhanden.

Im 1. und 2. Obergeschoss befinden sich insgesamt 7 Gästezimmer, eingerichtet mit Holz, im Tiroler Stil. Jedes der Zimmer verfügt über ein eigenes Badezimmer und hat eine Fläche von ca. 23m².

Ebenso gehört zur Immobilie eine Privatwohnung im 1. Obergeschoss. Die Wohnung besteht aus einem Schlafzimmer, großer Wohnküche, Badezimmer und Tages-WC, sowie einem Abstellraum und einem Büro.

Sonstige Angaben

Die Verkaufsliegenschaft könnte ohne größeren Aufwand in eine Pizzeria umgewandelt werden.

Vor bzw. neben dem Gebäude gibt es einen großen Grund, mit ausreichend Parkmöglichkeiten.

Kontaktperson

Kontakt

Immobilie anfragen