Taufers im Münstertal: Großzügige 2-Zimmerwohnung mit Balkon zu vermieten
Vermietet wird eine großzügige 2-Zimmerwohnung im Zentrum von Taufers im Münstertal. Die Lage kann als sehr gut bezeichnet werden, Geschäfte, Schule und Kindergarten befinden sich in unmittelbarer Nähe.
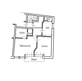
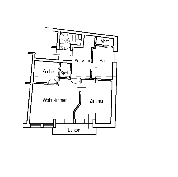
Die Wohnung hat eine Fläche von ca. 66 m² und ist wie folgt eingeteilt:
- Vorraum
- Abstellraum
- Badezimmer
- Speis
- Schlafzimmer
- Wohnzimmer
- Küche
- Balkon
Weiters gehört zur Wohnung ein Keller.
Die Wohnung wird nur an Personen mit Referenzen vermietet.
Die Wohnung hat eine Fläche von ca. 66 m² und ist wie folgt eingeteilt:
- Vorraum
- Abstellraum
- Badezimmer
- Speis
- Schlafzimmer
- Wohnzimmer
- Küche
- Balkon
Weiters gehört zur Wohnung ein Keller.
Ausstattung
Die Immobilie ist an das örtliche Fernwärmenetz angeschlossen, der Wärmeaustausch in der Wohnung erfolgt mittels Radiatoren und Fußbodenheizung.Sonstige Anmerkungen
Die Immobilie ist konventioniert und kann daher nicht als Ferienwohnung oder Zweitwohnsitz genutzt werden.Die Wohnung wird nur an Personen mit Referenzen vermietet.
Eckdaten
WohnungMieten
Taufers im Münstertal
Italien
65,83 m²
750,00 €
Weitere Informationen
22003
Fernwärme






