Schluderns: Geschäft mit großer Lagerfläche zu vermieten
Vermietet wird ein Geschäftslokal mit Lagerflächen in Schluderns, direkt an der Hauptstraße und somit in einer zentralen Lage, mit guten Verkehrsanbindungen und guter Sichtbarkeit.
Die Immobilie erstreckt sich über 3 Stockwerke und ist wie folgt eingeteilt:
2. Untergeschoss mit ca. 456 m²:
- 5 Lagerräume, 5 Arbeitsräume und 1 Abstellraum
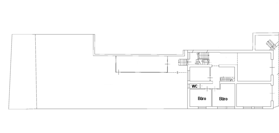
1. Untergeschoss mit ca. 43 m²:
- 2 Büroräume und WC
Erdgeschoss mit ca. 161 m²:
- Lager, WC und Geschäft mit großer Fensterfront
Die Immobilie wird mittels Ölheizung beheizt, der Wärmeaustausch erfolgt durch Radiatoren.
Die Immobilie erstreckt sich über 3 Stockwerke und ist wie folgt eingeteilt:
2. Untergeschoss mit ca. 456 m²:
- 5 Lagerräume, 5 Arbeitsräume und 1 Abstellraum
1. Untergeschoss mit ca. 43 m²:
- 2 Büroräume und WC
Erdgeschoss mit ca. 161 m²:
- Lager, WC und Geschäft mit großer Fensterfront
Ausstattung
Im Untergeschoss sind Kühlzellen vorhanden.Die Immobilie wird mittels Ölheizung beheizt, der Wärmeaustausch erfolgt durch Radiatoren.
Sonstige Anmerkungen
Die Anmietung von Teilflächen ist möglich.Eckdaten
EinzelhandelMieten
Schluderns
Italien










