Immobilienangebote>Immobilien kaufen

Algund/Forst: Freistehendes Wohnhaus im Rohbau zu verkaufen

Verkauft wird ein Wohnhaus im Rohbau mit 2 Wohneinheiten und einer großen Tiefgarage.

Das Wohnhaus liegt in der Gemeinde Algund, Fraktion Forst, mitten im landwirtschaftlichen Grün. Die gesamte Grundfläche beträgt 957 m², sodass ums Haus ein großzügiger Park angelegt werden kann.

Die Zufahrt ist LKW tauglich und in wenigen Minuten kann man das Stadtzentrum Meran erreichen. Auch ein Fahrradweg über die Etsch garantiert eine schnelle und sichere Anbindung an das Dorf Algund.

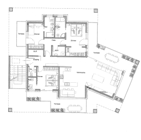
Die Immobilie ist wie folgt aufgeteilt:
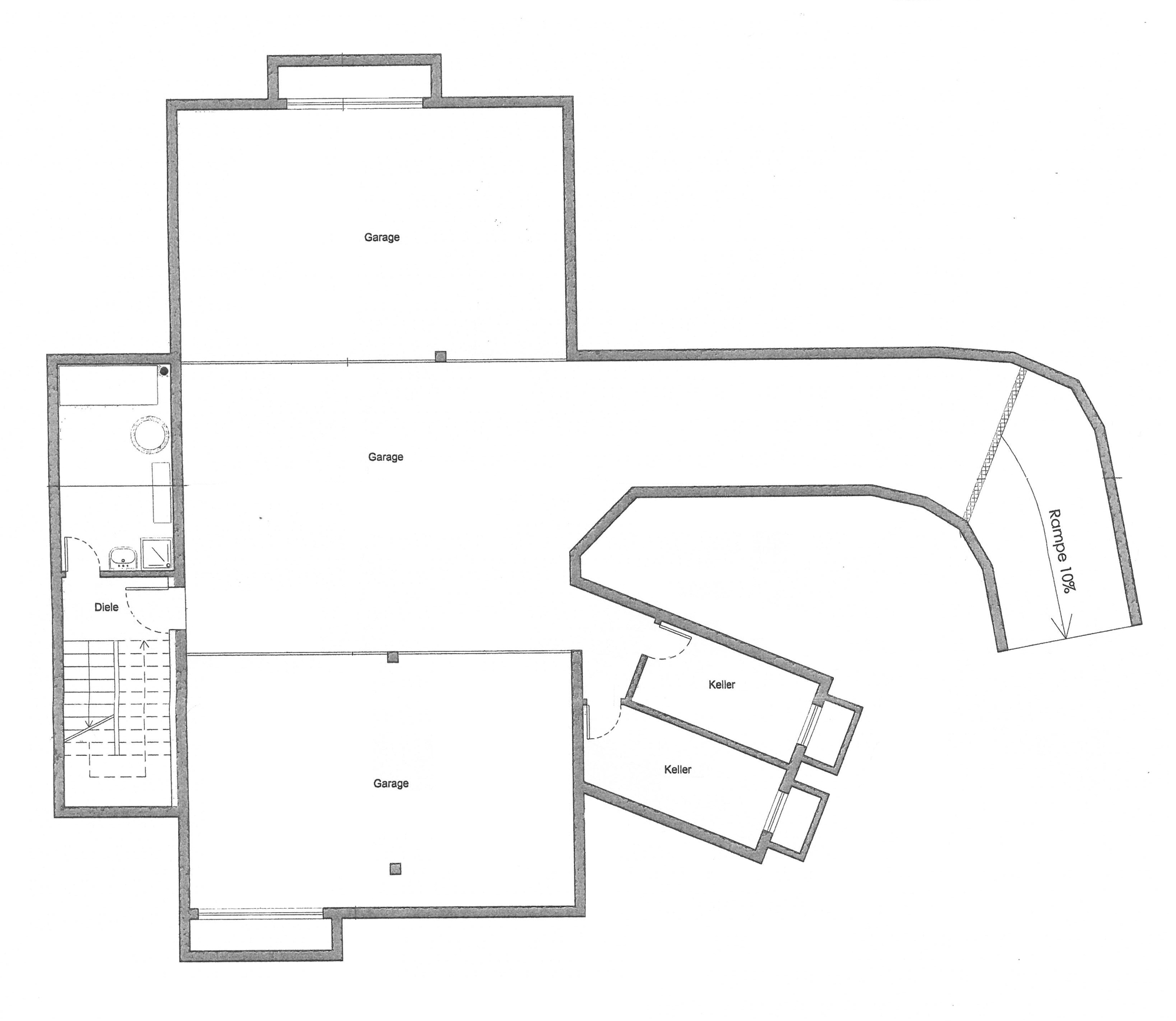
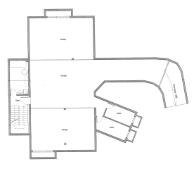
- Kellergeschoss: Große Tiefgarage, 2 Kellerabteile

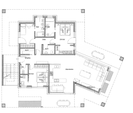
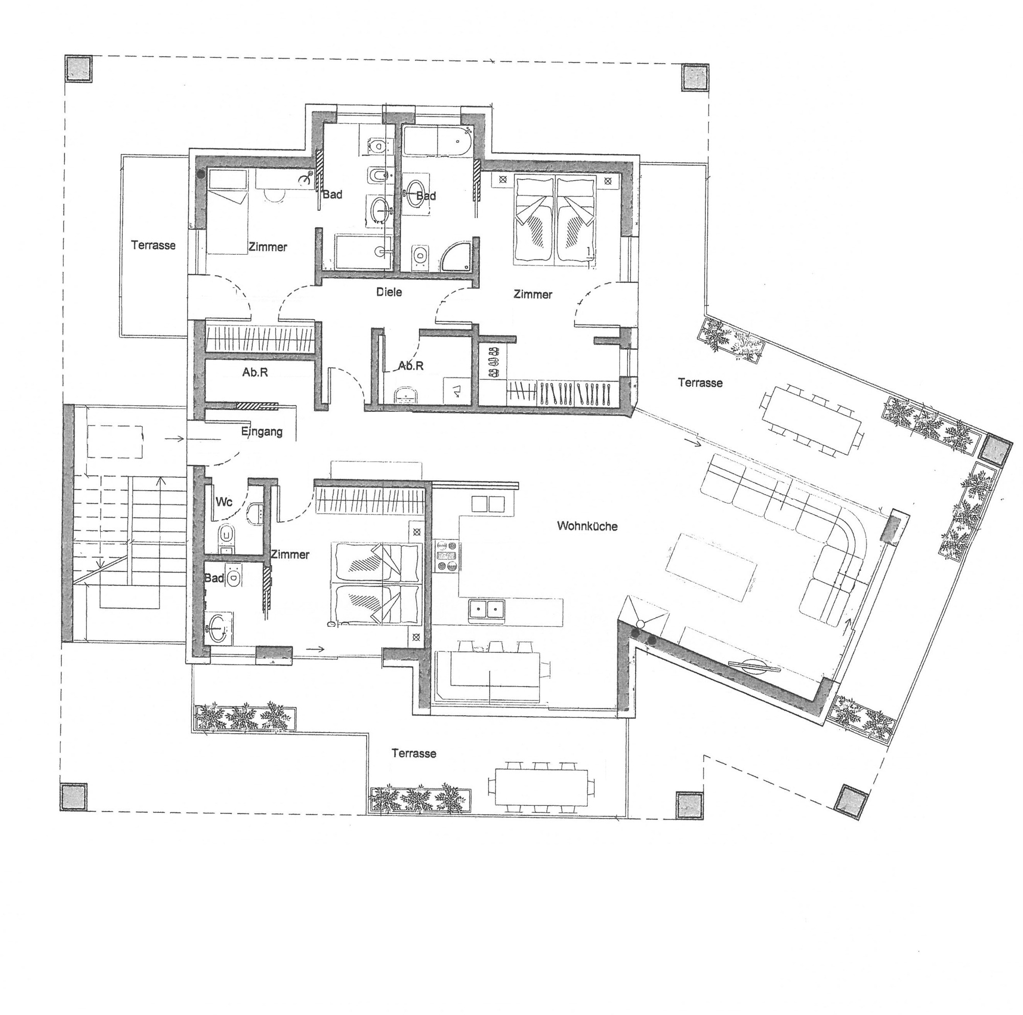
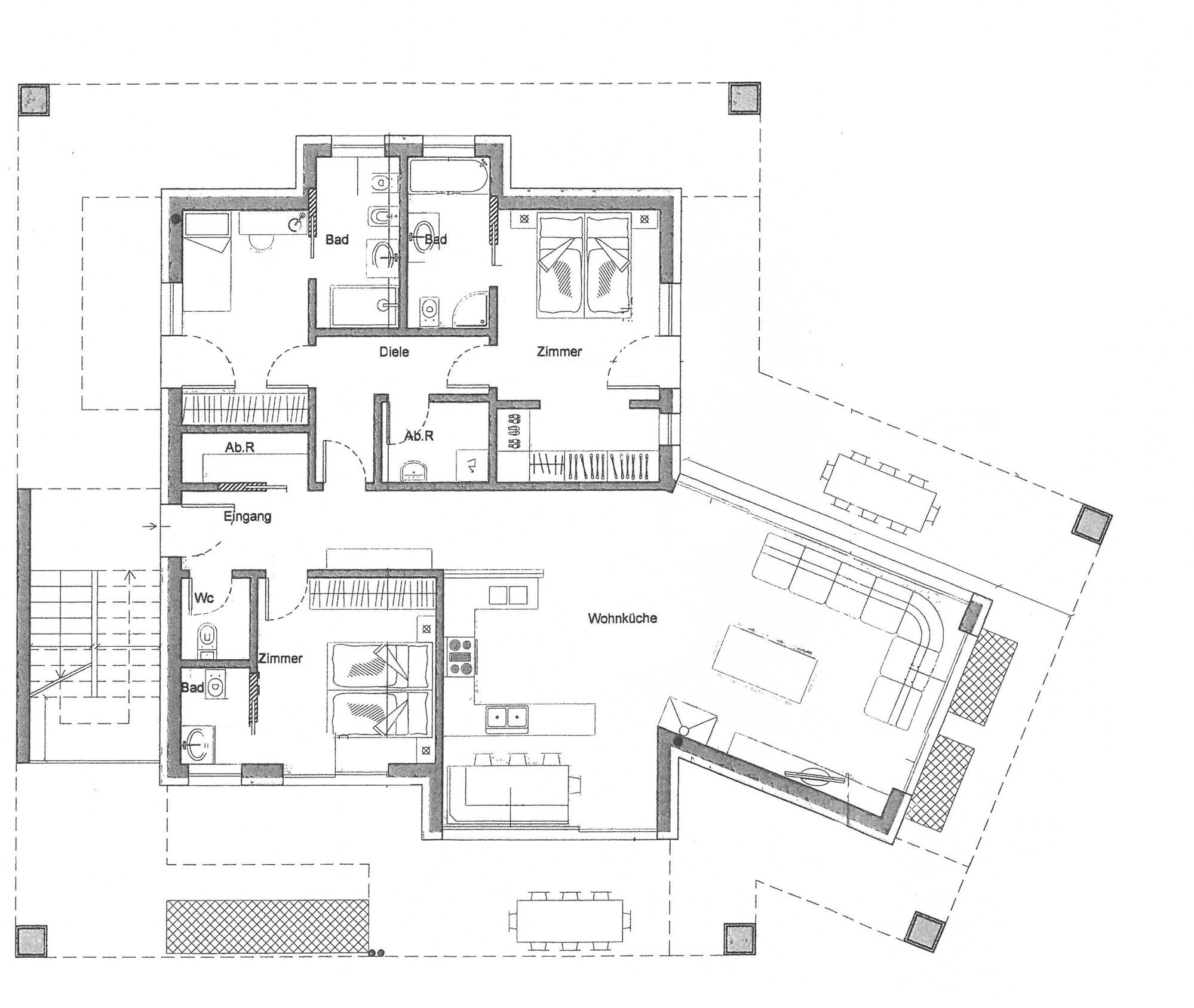
- Erdgeschoss: Wohneinheit bestehend aus Eingangsbereich, Wohnküche, Tages-WC, Diele, 2 Abstellräume und 3 Schlafzimmer mit 3 Bädern und Terrassen.

- Obergeschoss: Wohneinheit bestehend aus Eingangsbereich, Wohnküche, Tages-WC, Diele, 2 Abstellräume, 3 Schlafzimmer mit 3 Bädern und Terrassen.


Die Rohbauarbeiten samt Außenputz sind fertiggestellt. Das Dach ist isoliert.

Sonstige Anmerkungen

Das Gebäude ist nicht konventioniert und kann frei bewohnt oder vermietet werden, sei es als Hauptwohnsitz, aber auch als Ferienwohnung.

Eckdaten

Wohnhaus
Kaufen
Algund
Italien

Bilder

Algund/Forst: Freistehendes Wohnhaus im Rohbau zu verkaufen
Algund/Forst: Freistehendes Wohnhaus im Rohbau zu verkaufen
Algund/Forst: Freistehendes Wohnhaus im Rohbau zu verkaufen
Algund/Forst: Freistehendes Wohnhaus im Rohbau zu verkaufen
Algund/Forst: Freistehendes Wohnhaus im Rohbau zu verkaufen
Algund/Forst: Freistehendes Wohnhaus im Rohbau zu verkaufen
Algund/Forst: Freistehendes Wohnhaus im Rohbau zu verkaufen
Algund/Forst: Freistehendes Wohnhaus im Rohbau zu verkaufen
Algund/Forst: Freistehendes Wohnhaus im Rohbau zu verkaufen
Algund/Forst: Freistehendes Wohnhaus im Rohbau zu verkaufen
Algund/Forst: Freistehendes Wohnhaus im Rohbau zu verkaufen
Algund/Forst: Freistehendes Wohnhaus im Rohbau zu verkaufen

Karte

Zurück zur Übersicht
Kontakt
autorenew
Südtiroler Marklervereinigung Fimaa
Noch nichts passendes gefunden?
Unser digitaler Immobilienmakler hilft Ihnen bei der Suche!
Jetzt anmelden

Diese Seite verwendet Cookies für funktionale und analytische Zwecke. Lesen Sie unsere Cookie-Richtlinien für weitere Informationen. Durch die Nutzung dieser Website erklären Sie sich damit einverstanden.