Mals/Burgeis: Wohnhaus mit Wirtschaftsgebäude in ruhiger Lage zu verkaufen
Zum Verkauf steht ein Wohnhaus mit Wirtschaftsgebäude in Burgeis, einer Fraktion der Gemeinde Mals.
Das Wohnhaus ist wie folgt eingeteilt:
- Kellergeschoss: Garage und Keller
- Erdgeschoss: Küche, Speis, Esszimmer, Stube, Schlafzimmer, Tages-WC, Badezimmer, Weinkeller und Balkon
- 1.Obergeschoss: 3 Zimmer mit Bad/WC, Balkon
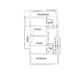
- 2.Obergeschoss: 2 Zimmer mit Bad/WC, Abstellraum und Dachboden, Balkon und Garten
Direkt an das Wohnhaus angebaut, befindet sich gegen Norden das Wirtschaftsgebäude. Es besteht aus Stall im Erdgeschoss und Stadel im Obergeschoss. Der Stadel hat eine Höhe von ca. 6,5 m und kann mit landwirtschaftlichen Maschinen befahren werden.
Im Stall wurden bis vor Kurzem Ziegen gehalten. Der Stadel ist leergeräumt.
Das Wirtschaftsgebäude hat eine oberirdische Kubatur von ca. 340 m³.
Das Wohnhaus ist wie folgt eingeteilt:
- Kellergeschoss: Garage und Keller
- Erdgeschoss: Küche, Speis, Esszimmer, Stube, Schlafzimmer, Tages-WC, Badezimmer, Weinkeller und Balkon
- 1.Obergeschoss: 3 Zimmer mit Bad/WC, Balkon
- 2.Obergeschoss: 2 Zimmer mit Bad/WC, Abstellraum und Dachboden, Balkon und Garten
Direkt an das Wohnhaus angebaut, befindet sich gegen Norden das Wirtschaftsgebäude. Es besteht aus Stall im Erdgeschoss und Stadel im Obergeschoss. Der Stadel hat eine Höhe von ca. 6,5 m und kann mit landwirtschaftlichen Maschinen befahren werden.
Im Stall wurden bis vor Kurzem Ziegen gehalten. Der Stadel ist leergeräumt.
Das Wirtschaftsgebäude hat eine oberirdische Kubatur von ca. 340 m³.
Ausstattung
Das Wohnhaus ist an das örtliche Fernwärmenetz angeschlossen, verfügt aber auch noch über eine Ölheizung mit Tank. Der Wärmeaustausch erfolgt mittels Radiatoren, in der Küche ist zusätzlich ein Holzherd und im Wohnzimmer ein Kachelofen vorhanden.Sonstige Anmerkungen
Das Wohnhaus wurde 1986 bis auf die 1. Decke abgerissen und in Ziegelbauweise neu errichtet.Eckdaten
WohnhausKaufen
Mals
Italien













